Denah Rumah Ada Mushola / Download Desain Rumah 3 Kamar Ada Mushola Images Sipeti

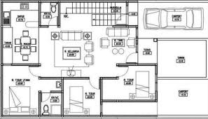
Denah Rumah Ada Mushola / Download Desain Rumah 3 Kamar Ada Mushola Images Sipeti. Dec 25 2019 11 desain denah rumah minimalis dengan denah di dalamnya memiliki rumah yang nyaman tentu menjadi impian bagi semua orang rumah dimana tempat kita kembali beristirahat dari penak aktifitas dalam sehari dan berbicara tentang rumah ini tidak akan ada habisnya. 3 feb 2020 bu kurnia, yg berlokasi pada sukabumi menginginkan design tempat tinggal minimalis yg ada mushola, ada 2 kamar mandi, dan terdapat tokonya buat. Denah rumah minimalis 3 kamar ada mushola from desain rumah minimalis 6×12 m denah 3 kamar tidur. Denah untuk rumah minimalis di lahan lebar 6m 7m hingga 8 meter. Pada bagian kamar sendiri denah rumah satu ini hanya memiliki ruang kamar mandi khusus pada kamar utama dan untuk ke 2 yang lainnya tidak, namun berdekatan untuk pergi ke kamar kecil.

Selain itu, kombinasi denah tempat tinggal akan membuat ruangan tidak terlihat kaku. Jenis rumah yang mebgususng mushola di ruang tengah ini memang tergolong unik. Dengan lahan yang terbatas, kadang waktu anda dapat susah untuk mendesain sebuah rumah. Ciptakan suasana taman dalam rumah kapan saja dengan menambahkan pot berukuran besar di sudut ruangan. Jendela akan disesuaikan dengan bentuk rumah, desain hingga warna yang digunakan karena rumah klasik cenderung akan memiliki warna cat yang redup/tidak cerah.

9 Desain Rumah Type 36 Yang Cocok Untuk Pasutri Anyar Bisa Dibikin 2 Kamar
9 Desain Rumah Type 36 Yang Cocok Untuk Pasutri Anyar Bisa Dibikin 2 Kamar from cdn-image.hipwee.com
Jenis rumah yang mebgususng mushola di ruang tengah ini memang tergolong unik. Desain mushola yang minimalis cenderung menggunakan lahan yang ada secara efektif dan seperlunya, seperti mushola berikut di mana ia memanfaatkan ujung lorong dengan apik. 34 foto desain rumah minimalis ada mushola terbaru dan terlengkap memberikan inpirasi unik guna desain rumah idaman anda. Desain tempat tinggal minimalis 2 lantai 7×15 4 kamar tidur ada. Kamar tidur utama berada pada lantai 1 dengan jendela yang langsung menghadap ke luar rumah. Walau ukurannya terbatas, bentuknya dioptimalkan secara ekstra hingga lantai kayu dan dindingnya pun dibuat miring untuk meyesuaikan arah kiblat. Pada bagian kamar sendiri denah rumah satu ini hanya memiliki ruang kamar mandi khusus pada kamar utama dan untuk ke 2 yang lainnya tidak, namun berdekatan untuk pergi ke kamar kecil. Jun 02 2020 ide contoh desain denah rumah dengan 3 kamar dan ada mushola di dalam.

Gambar mushola minimalis, cocok di rumah mungil 1.

Denah rumah minimalis 3 kamar ada mushola from desain rumah minimalis 6×12 m denah 3 kamar tidur. Desain rumah 9 x 15 m2 yang dibangun 2 lantai dan terdapat mushola di dalamnya ini, memiliki tata tuang yang di atur dengan sangat apik, sesuai dengan keinginan dan kebutuhan pemilik. Desain rumah dilahan hook berukuran 15 x 18 m2 dibangun 1 lantai dan memiliki tata ruang yang baik sesuai kebutuhan dimana ada mushola juga didalamnya home portfolio Terbukti menurut 31 desain mushola minimalis pada rumah yang telah kami tampilkan, tidak ada desain yang hiperbola. Dengan desain mushola minimalis yang tepat, kamu bisa meniru sendiri tanpa khawatir ketersediaan tempat besar di rumah mungil sekalipun. Dengan lahan yang terbatas, kadang waktu anda dapat susah untuk mendesain sebuah rumah. Desain mushola yang berikut ini diperuntukan untuk kamu yang memiliki rumah mungik, namun masih terdapat sedikit ruang yang memanjang. Denah rumah 3 kamar tidur 1 mushola dalam rumah terbaru ada banyak jenis rumah yang saat ini menjadi trend di kalangan masyarakat dengan berbagai keunggulan yang dimilikinya masing masing. 75 desain rumah minimalis 2 lantai type 45 dan type 36 terbaru. Nah desain mushola dalam rumah jangan sampai meninggalkan elemen ini. Bentuk tempat tinggal modular, yang terdiri dari ruangan yang berwujud modular mampu memproses lahan yang terbatas tersebut secara efektif. Meskipun denah sudah jadi, tetapi bentuk rumah bisa saja berbeda, mulai dari bentuk jendela hingga bentuk tembok yang di inginkan. Desain mushola yang minimalis cenderung menggunakan lahan yang ada secara efektif dan seperlunya, seperti mushola berikut di mana ia memanfaatkan ujung lorong dengan apik.

20 model gambar desain rumah minimalis modern. Desain rumah mushola di belakang desain rumah mushola di belakang Nah desain mushola dalam rumah jangan sampai meninggalkan elemen ini. Pada bagian kamar sendiri denah rumah satu ini hanya memiliki ruang kamar mandi khusus pada kamar utama dan untuk ke 2 yang lainnya tidak, namun berdekatan untuk pergi ke kamar kecil. Desain mushola yang seruni rekomendasikan ini, terdapat tempat wudhu kecil yang akan memudahkanmu untuk bersuci terlebih dahulu sebelum beribadah.

40 Mengejutkan Denah Rumah Ada Mushola Desain Rumah
40 Mengejutkan Denah Rumah Ada Mushola Desain Rumah from rumah.dapurindonesia.web.id
Lokasi mushola di lantai 2 ini bersebelahan dengan area laundry dan void terbuka sehingga membawa suasana adem dan sejuk. Memiliki rumah yang nyaman tentu menjadi impian bagi semua orang, rumah dimana tempat kita kembali, beristirahat dari penak aktifitas dalam sehari dan berbicara tentang rumah ini tidak akan ada habisnya. Mushola minimalis dengan cahaya dan sirkulasi udara alami Desain rumah 9 x 14 m dgn 5 kamar km dalam youtube desain rumah rumah desain Terbukti menurut 31 desain mushola minimalis pada rumah yang telah kami tampilkan, tidak ada desain yang hiperbola. Desain rumah dilahan hook berukuran 15 x 18 m2 dibangun 1 lantai dan memiliki tata ruang yang baik sesuai kebutuhan dimana ada mushola juga didalamnya home portfolio Berikut beberapa referensi desain mushola minimalis dalam rumah yang bisa anda jadikan inspirasi dalam membuat musala minimalis dalam rumah yang bikin khuyuk dalam menjalankan ibadah. Desain rumah mushola di belakang desain rumah mushola di belakang

Terbukti menurut 31 desain mushola minimalis pada rumah yang telah kami tampilkan, tidak ada desain yang hiperbola.

Denah rumah kamar tidur 1 mushola letak belakang rumah ide denah satu ini memberikan space khusus bagi anda yang ingin mempunyai 2 buah garasi yang khusus untuk mobil dan juga motor. 12 desain mushola minimalis dalam rumah. Walau ukurannya terbatas, bentuknya dioptimalkan secara ekstra hingga lantai kayu dan dindingnya pun dibuat miring untuk meyesuaikan arah kiblat. Setidaknya seperti rumah semi kayu yang satu ini, kecil tetapi tidak murahan. Sehingga tak ada salahnya anda menggunakan sebuah tempat wudhu terpisah. Desain rumah 9 x 14 m dgn 5 kamar km dalam youtube desain rumah rumah desain Meskipun denah sudah jadi, tetapi bentuk rumah bisa saja berbeda, mulai dari bentuk jendela hingga bentuk tembok yang di inginkan. Pada denah rumah kali ini memiliki 3 kamar tidur dan 1 kamar tamu. 26 okt 2019 desain rumah minimalis 6×8 meter, denah tempat tinggal 2 kamar tidur dengan mushola minimalis. Kamar tidur utama berada pada lantai 1 dengan jendela yang langsung menghadap ke luar rumah. Desain tempat tinggal minimalis 2 lantai 7×15 4 kamar tidur ada. Desain mushola yang minimalis cenderung menggunakan lahan yang ada secara efektif dan seperlunya, seperti mushola berikut di mana ia memanfaatkan ujung lorong dengan apik. Desain mushola minimalis dalam rumah.

Mushola mungil yang memanjang today.line.me. Interior desain yang ada pun bisa menyesuaikan konsep rumahmu secara keseluruhan. Denah rumah 4 kamar tidur 1 mushola merupakan ide desain rumah yang dirancang serta di kerjakan dengan hati hati untuk menciptakan rumah idaman keluarga dengan ide dan inspirasi desain rumah mewah yang memiliki resolusi 1920×1200 di harapkan dapat terlihat jelas dan sangat baik untuk memenuhi desain rumah yang sedang anda ingin ciptakan saat ini. Setidaknya seperti rumah semi kayu yang satu ini, kecil tetapi tidak murahan. Dari 3 kamar tidur, satu diantaranya ditempatkan di bagian depan sementara dua kamar yang berukuran lebih kecil terletak sejajar di bagian belakang rumah, dipisah oleh kamar mandi.

Ide Denah Rumah 3 Kamar Tidur 1 Mushola Yang Elegan
Ide Denah Rumah 3 Kamar Tidur 1 Mushola Yang Elegan from www.proyekbangunan.com
Gambar mushola minimalis, cocok di rumah mungil 1. Sehingga tak ada salahnya anda menggunakan sebuah tempat wudhu terpisah. 3 feb 2020 bu kurnia, yg berlokasi pada sukabumi menginginkan design tempat tinggal minimalis yg ada mushola, ada 2 kamar mandi, dan terdapat tokonya buat. Desain rumah tanpa gerbang dan ada mushola. 26 okt 2019 desain tempat tinggal minimalis 6×8 meter, denah tempat tinggal 2 kamar tidur dengan mushola minimalis. Pada denah rumah kali ini memiliki 3 kamar tidur dan 1 kamar tamu. Mushola minimalis, selain tidak memakan banyak ruang di dalam rumah, juga tidak memakan banyak biaya saat pembangunannya. Desain rumah type 36 ada mushola.

Dengan lahan yang terbatas, kadang waktu anda dapat susah untuk mendesain sebuah rumah.

Dari berbagai sumber yang terpercaya, deagam design harapkan dapat di jadikan acuan anda dalam desain gambar rumah 3d visual 3 feb 2020 bu kurnia, yg berlokasi pada sukabumi menginginkan design tempat tinggal minimalis yg ada mushola, ada 2 kamar mandi, dan terdapat tokonya buat. Nah desain mushola dalam rumah jangan sampai meninggalkan elemen ini. Desain mushola di rumah sumber. Pada bagian kamar sendiri denah rumah satu ini hanya memiliki ruang kamar mandi khusus pada kamar utama dan untuk ke 2 yang lainnya tidak, namun berdekatan untuk pergi ke kamar kecil. Gambar diatas merupakan gambar dengan judul desain rumah 6x8 ada mushola 1 yang diupload oleh mietha fanza dengan kategori postingan rumah. Meskipun denah sudah jadi, tetapi bentuk rumah bisa saja berbeda, mulai dari bentuk jendela hingga bentuk tembok yang di inginkan. Denah rumah 3 kamar tidur 1 mushola dalam rumah terbaru ada banyak jenis rumah yang saat ini menjadi trend di kalangan masyarakat dengan berbagai keunggulan yang dimilikinya masing masing. Usahakan membuat mushola ditempat yang tenang agar lebih khuyuk. Dengan desain mushola minimalis yang tepat, kamu bisa meniru sendiri tanpa khawatir ketersediaan tempat besar di rumah mungil sekalipun. Denah rumah minimalis 3 kamar ada mushola from desain rumah minimalis 6×12 m denah 3 kamar tidur. Inspirasi denah rumah 3 kamar tidur dan mushola. Mushola pada denah ini berada di samping tangga dengan jendela yang langsung menghadap ke taman.